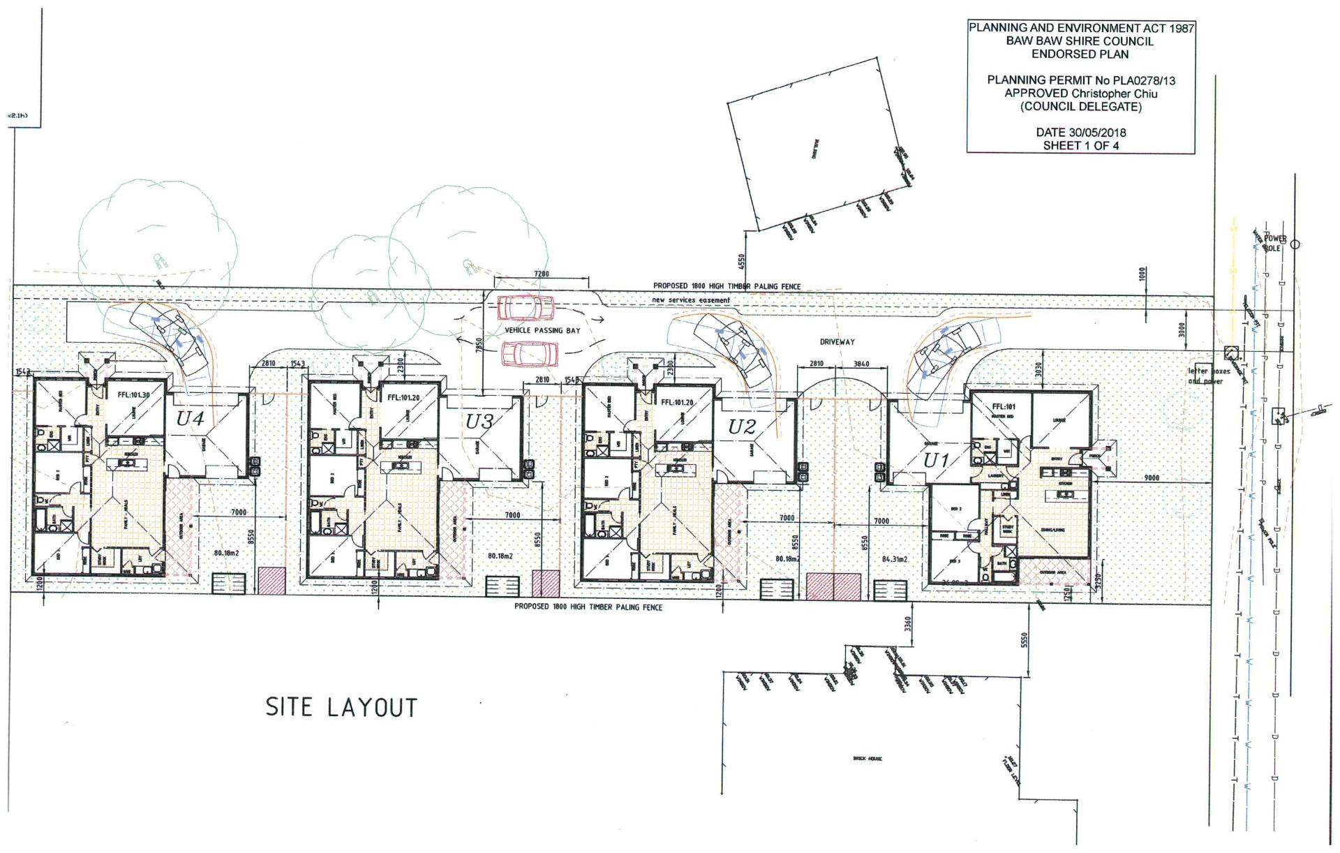
Large Vacant Residential Land With Planning Permit For Four Townhouses

This large approximately 2041m2 allotment (1/2acre) is not one to be missed! Located at the end of a one way street and on flat land it comes with a planning permit for four 3 bedroom, 2 bathroom townhouses. Is this your next investment project?

2,041 m2
Address 17 Nelson Rd, Trafalgar
Price SOLD
Property Type Residential
Property ID 927
Category Vacant Land
Land Area 2,041 m2

Agent Details

Aaron Megaw photo

Aaron Megaw

03 5633 2858
View Profile