Great Value Buying

This comfortable 4 bedroom – 2 bathroom brick veneer home will suit many living dynamics.

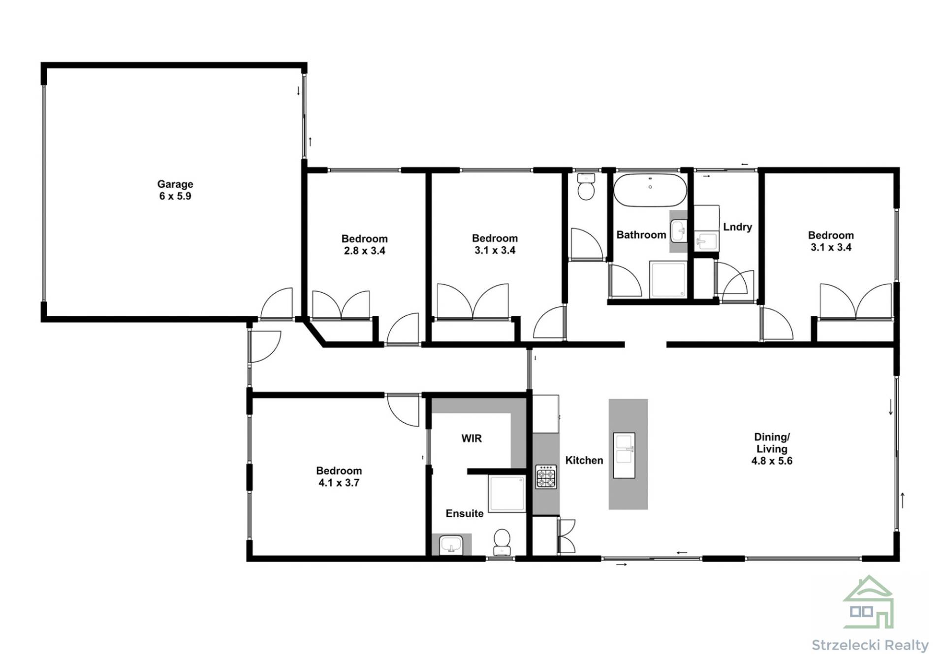
The easy flow floor plan gives you all the space you need. A functional open plan kitchen with gas cooking, island bench and clean sleek tiles that flow through to the dining/living areas. Large glass sliding doors let the natural light stream in to the living area with a full view of the back yard, perfect for keeping an eye on the kids or letting your fury friends keep you in sight.  

The spacious master suite comes complete with a walk-in robe and ensuite whilst the remaining 3 bedrooms all have built in robes.

Additional features include gas central heating, large split system in the living area, double garage under main roof with internal access so no more getting wet bringing the groceries inside. There is side access to the rear yard for the trailer or van and low maintenance gardens and a relocatable garden shed.

This easily maintained property will give you an abundance of life choices. Be it for the first home buyer, retiree or anyone in between, you won’t be disappointed.  

Contact Strzelecki Realty today on (03) 5633 2858.  

 

*Please note some images are digitally enhanced showing furniture in rooms to give to an idea of what the home could look like.

 

4 2 2 720 m2
Address 56 Vincent Bvd, Trafalgar
Price SOLD
Property Type Residential
Property ID 2119
Category House
Land Area 720 m2

Agent Details

Aaron Megaw photo

Aaron Megaw

03 5633 2858
View Profile