Wow factor potential!

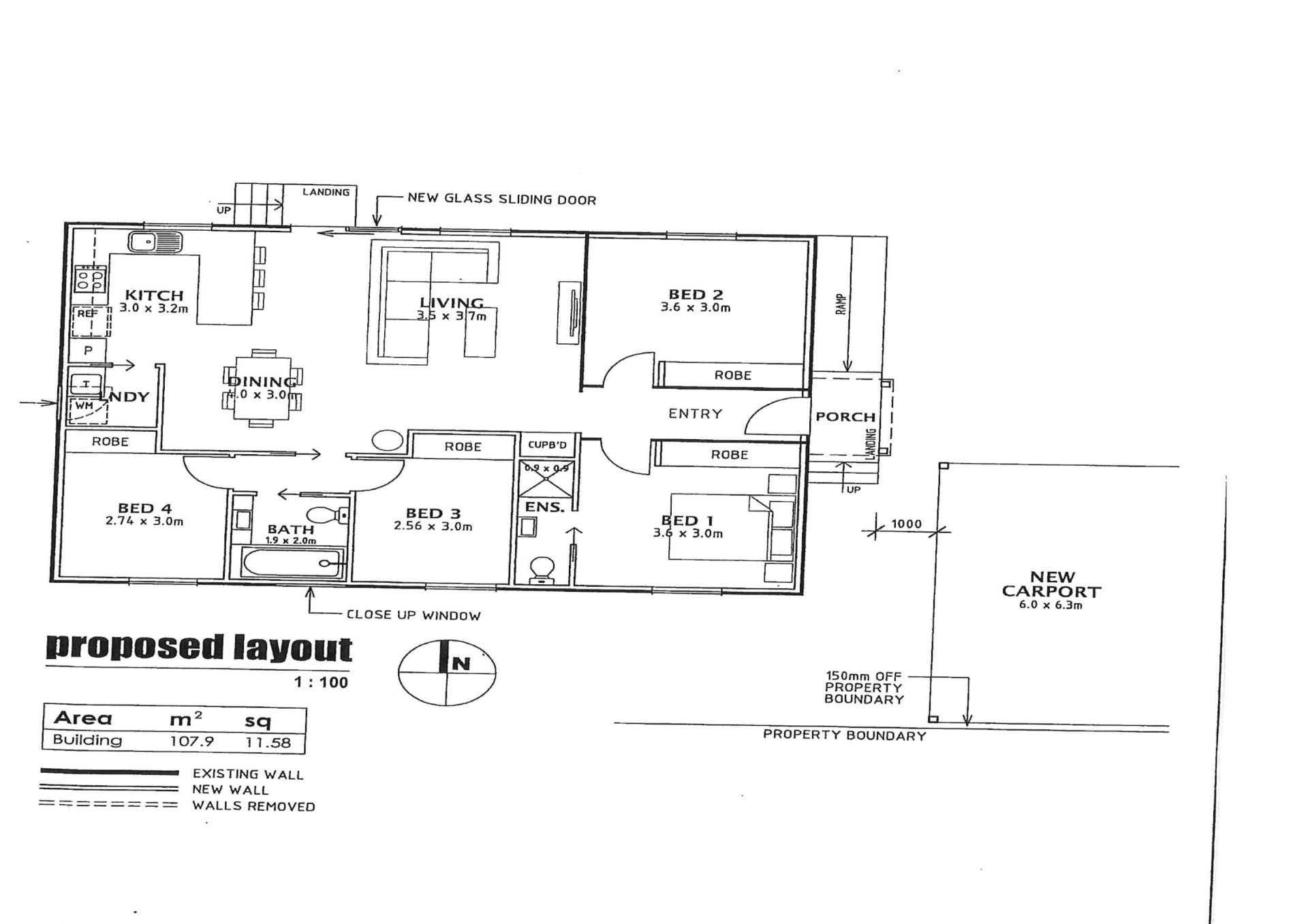
This existing hall, on its own title has plans and permits ready to go with the foundation to make it a truly gorgeous , spacious home.

With high ceilings and a solid existing structure, it has all the the space to cost effectively give it a true WOW factor.

Existing is 2 large bedrooms and ensuite, with all the permits to make it a 4 bedroom, 2 bathroom 2 car home. 

With great views, entertaining areas, northern sunlight and enough space for caravans, cars or boats this this private lane access property has all the potential.

A great location, great value for money or a great investment opportunity to complete, on-sell and earn.

4 1
Address 6 Phelans Lane, Moe
Price SOLD
Property Type Residential
Property ID 1223
Category House

Agent Details

Julie Reed photo

Julie Reed

0434 427 001
View Profile